Ir
TYPE
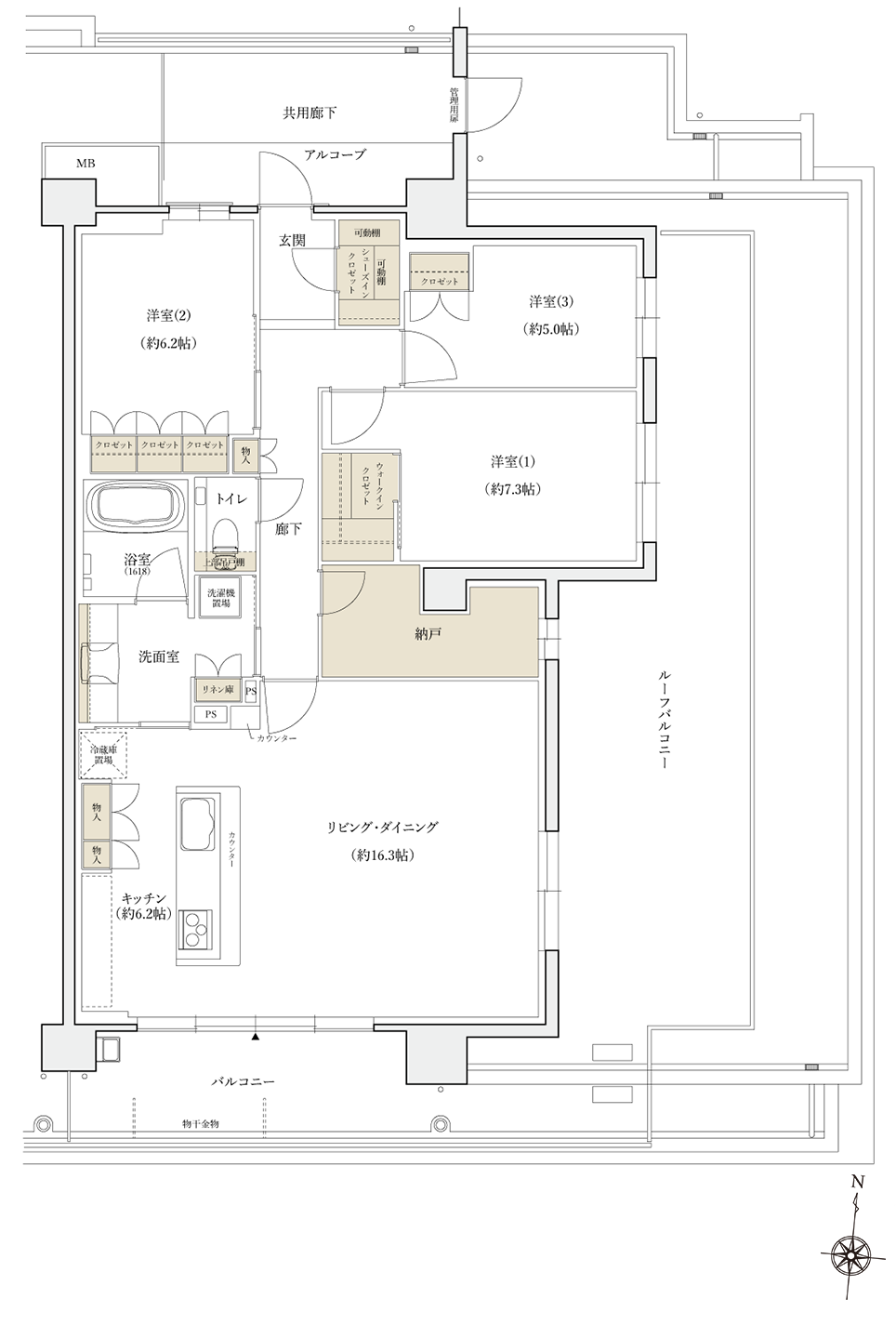
BASIC
3LDK +N+WIC+SIC
住居専有面積
100 .21㎡
(約30.31坪)
バルコニー面積 13.67㎡(約4.13坪) ルーフバルコニー面積31.98(約9.67坪) アルコーブ面積4.55㎡(約1.35坪)
VALUE POINT
■洋室2部屋とリビング・ダイニングがルーフバルコニーに面した開放感あふれる3LDK角住戸。
■約3.7帖の大型の納戸。家中の荷物がスッキリ片付く大容量の収納スペース。
■シューズインクロゼットをはじめ充実の収納、広々とした洋室や水廻り、アイランドキッチンなど、すべてにゆとりを持たせたラグジュアリープラン。

※掲載の図面は計画段階のものであり、今後変更になる場合がございます。
※掲載の情報は2025年6月時点のものであり、 今後変更になる場合がございます。
※掲載の情報は2025年6月時点のものであり、 今後変更になる場合がございます。