image photo
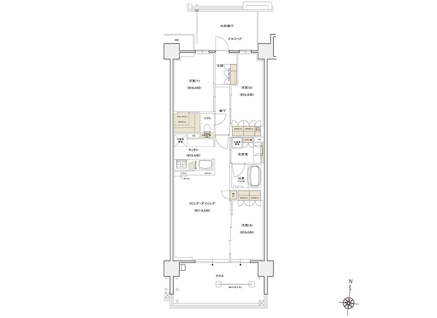
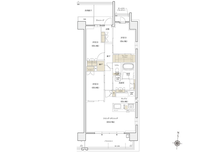
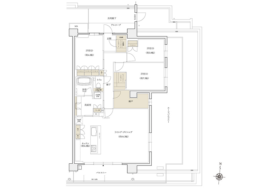
PLAN間取り
DESCRIPTION
間取りの紹介
DESCRIPTION
57.40㎡~100.12㎡。
1LDK+S~4LDKの
開放感あふれる住戸プラン。
4LDK
/
3LDK
/
2LDK+S
/
1LDK+S
/
※掲載の図面は計画段階のものであり、今後変更になる場合がございます。
※掲載の情報は2025年4月時点のものであり、今後変更になる場合がございます。
※掲載の情報は2025年4月時点のものであり、今後変更になる場合がございます。
