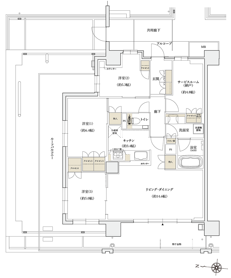
B2r
TYPE
BASIC
3LDK +S
住居専有面積
86 .98㎡
(約26.31坪)
バルコニー面積/15.30㎡(約4.62坪) ルーフバルコニー面積/20.63㎡(約6.24坪) アルコーブ面積/4.20㎡(約1.27坪)

※掲載の図面は計画段階のものであり、今後変更になる場合がございます。
※掲載の情報は2025年6月時点のものであり、 今後変更になる場合がございます。
※掲載の情報は2025年6月時点のものであり、 今後変更になる場合がございます。