Fg
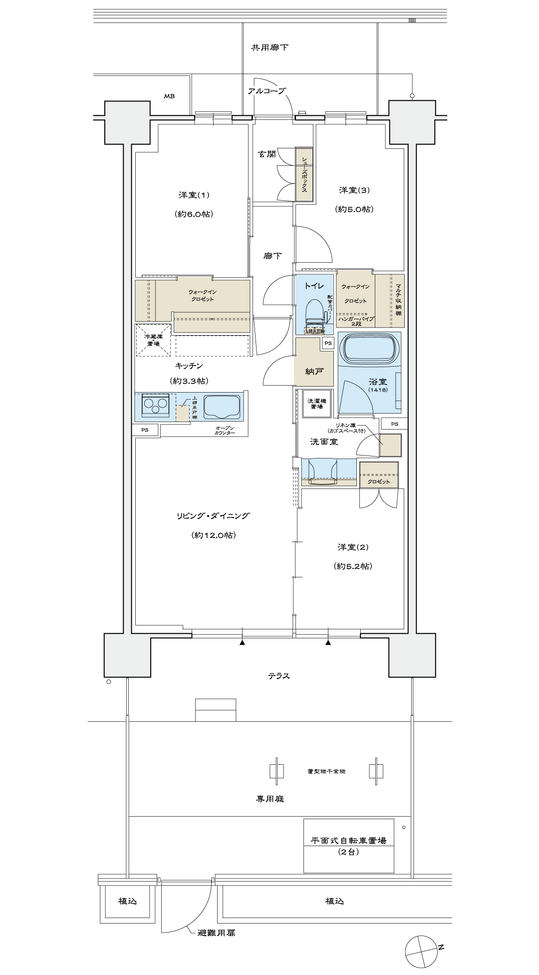
TYPE
BASIC
3LDK +WIC+N
住居専有面積
72 .13㎡
テラス面積/11.34㎡ 専用庭面積/22.68㎡ アルコーブ面積/4.65㎡
VALUE POINT
■洋室(1)と洋室(3)にはウォークインクロゼット
■洋室(2)の扉を開放すれば、約17.2帖の横長リビング

WIC:ウォークインクロゼット N:納戸
※掲載の図面は計画段階のものであり、今後変更になる場合がございます。
※掲載の情報は2025年9月時点のものであり、 今後変更になる場合がございます。
※掲載の図面は計画段階のものであり、今後変更になる場合がございます。
※掲載の情報は2025年9月時点のものであり、 今後変更になる場合がございます。