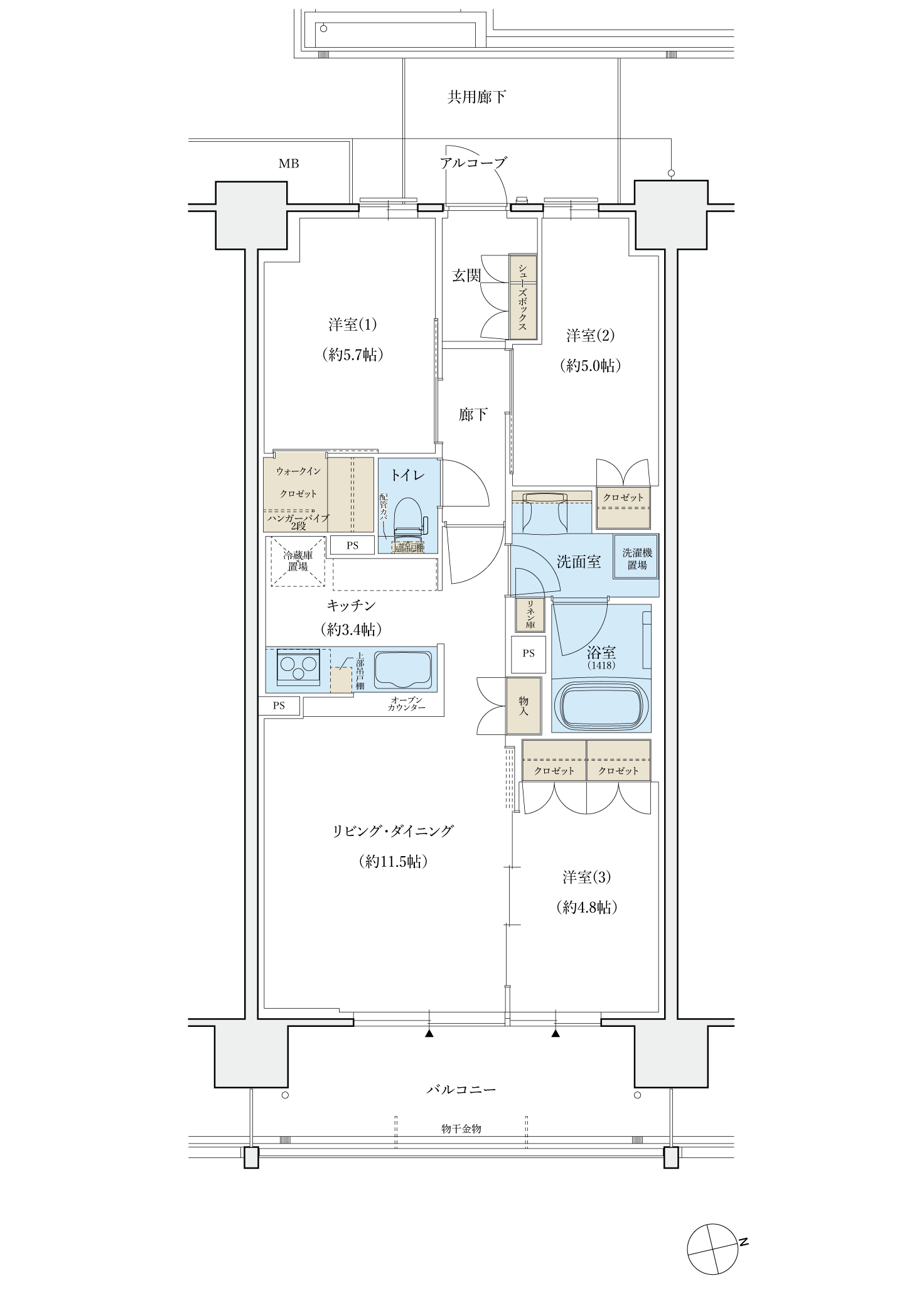
B
TYPE
BASIC
3LDK +WIC
住居専有面積
67 .55㎡
バルコニー面積/10.62㎡ アルコーブ面積/4.27㎡
VALUE POINT
■洋室(3)可動間仕切りを開ければリビング・ダイニングと連続した大空間に
■物入やウォークインクロゼットなど住まいの随所に収納を設置

※掲載の図面は計画段階のものであり、今後変更になる場合がございます。
※掲載の情報は2025年9月時点のものであり、 今後変更になる場合がございます。
※掲載の情報は2025年9月時点のものであり、 今後変更になる場合がございます。