G
TYPE
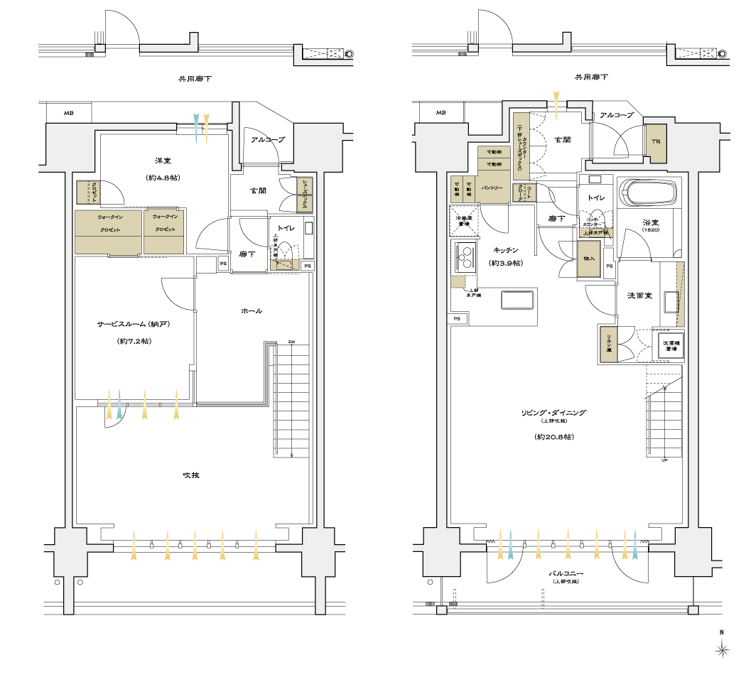
BASIC
1LDK +S+2WIC
住居専有面積
105 .52㎡
下階住居専有面積
63 .36㎡
上階住居専有面積
42 .16㎡
トランクルーム面積/0.69㎡ バルコニー面積/9.68㎡ アルコーブ面積/2.11㎡(下階) アルコーブ面積/4.60㎡(上階)
VALUE POINT
■特徴的なメゾネットタイプの間取り。
■2層吹き抜けの窓がもたらす、開放感。
■上下階それぞれに玄関設置。

WIC:ウォークインクロゼット S:サービスルーム
※掲載の図面は計画段階のものであり、今後変更になる場合がございます。
※掲載の情報は2025年11月時点のものであり、今後変更になる場合がございます。
※避雷針などの設備機器計画内容については今後変更となる場合がございます。
※掲載の図面は計画段階のものであり、今後変更になる場合がございます。
※掲載の情報は2025年11月時点のものであり、今後変更になる場合がございます。
※避雷針などの設備機器計画内容については今後変更となる場合がございます。