関電不動産開発がお届けする、分譲マンション「シエリアシティ大津におの浜」の公式サイトです。
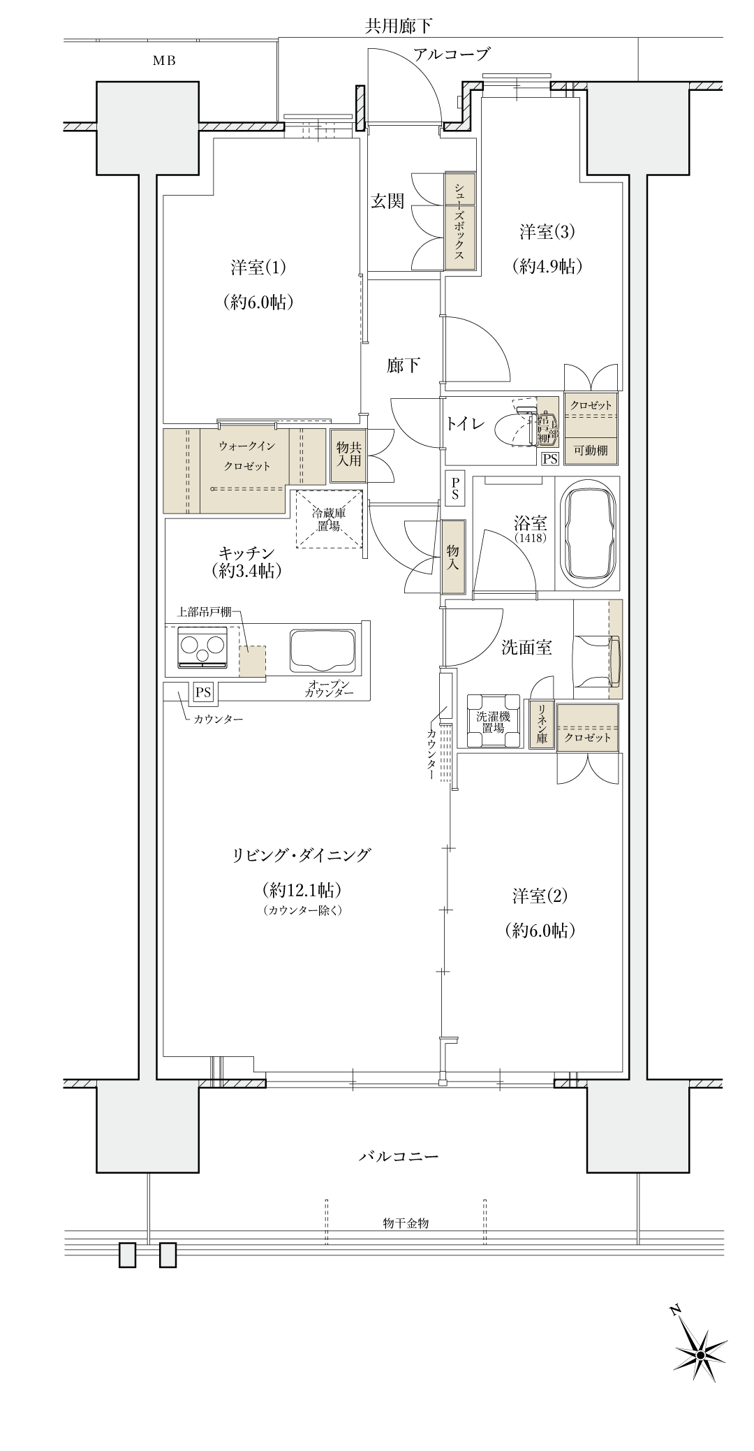
BH
type
Basic
3
LDK+WIC
住居専有面積
71
.25
㎡
バルコニー面積
12.00㎡
アルコーブ面積
3.74㎡
間取り一覧に戻る
間取り一覧に戻る
WIC:ウォークインクロゼット
※掲載の間取図・面積等は設計図を元に描いたもので、今後変更になる場合がございます。予めご了承ください。