関電不動産開発がお届けする、新築分譲マンション「シエリア京橋 ウエスト&イースト」の公式サイトです。
A
type
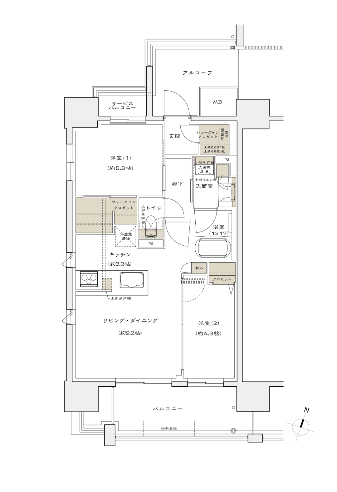
Basic
イースト
2
LDK+WIC+SIC
住居専有面積
53
.23
㎡
アルコーブ面積
6.54㎡
バルコニー面積
10.42㎡(2〜8階)
10.62㎡(9〜13階)
サービスバルコニー面積
1.89㎡
間取り一覧に戻る
間取り一覧に戻る
※掲載の間取り図は計画段階のもので、今後変更になる場合がございます。
※階数により形状が異なる場合があります。詳しくは係員までお問合せ下さい。
WIC:ウォークインクロゼット SIC:シューズインクロゼット
※掲載の間取図・面積等は設計図を元に描いたもので、今後変更になる場合がございます。予めご了承ください。