F
TYPE
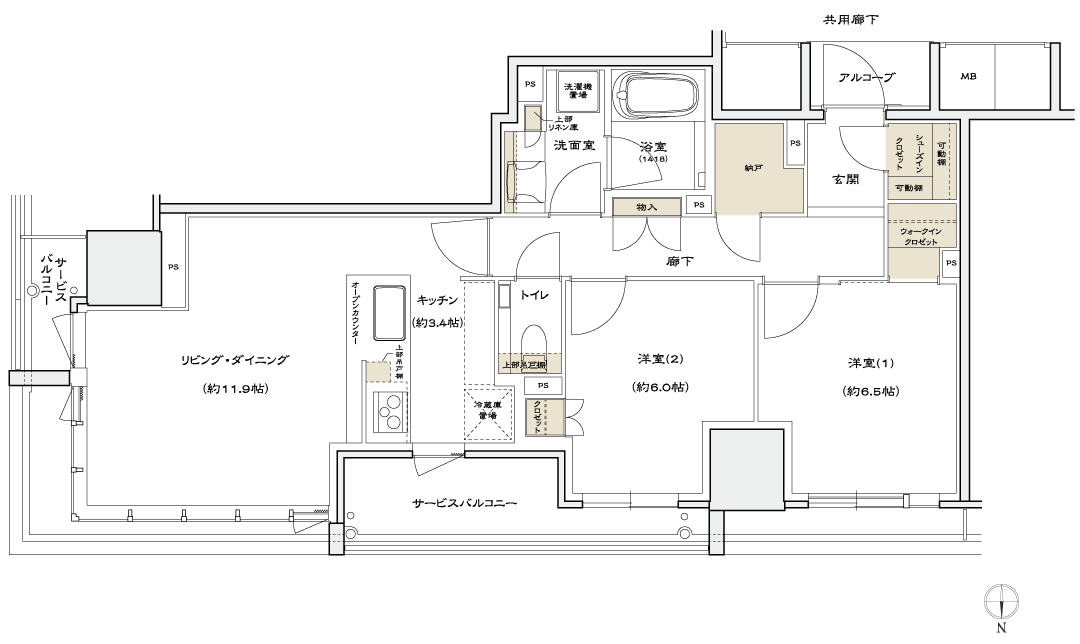
BASIC
2LDK +N+WIC+SIC
住居専有面積
67 .83㎡
(約20.51坪)
サービスバルコニー面積/8.90㎡(約2.60坪)

WIC:ウォークインクロゼット MB:メーターボックス ET:エコキュートタンク Sta.:物入
※掲載の情報は2025年10月時点のものであり、 今後変更になる場合がございます。
※掲載の情報は2025年10月時点のものであり、 今後変更になる場合がございます。