D
TYPE
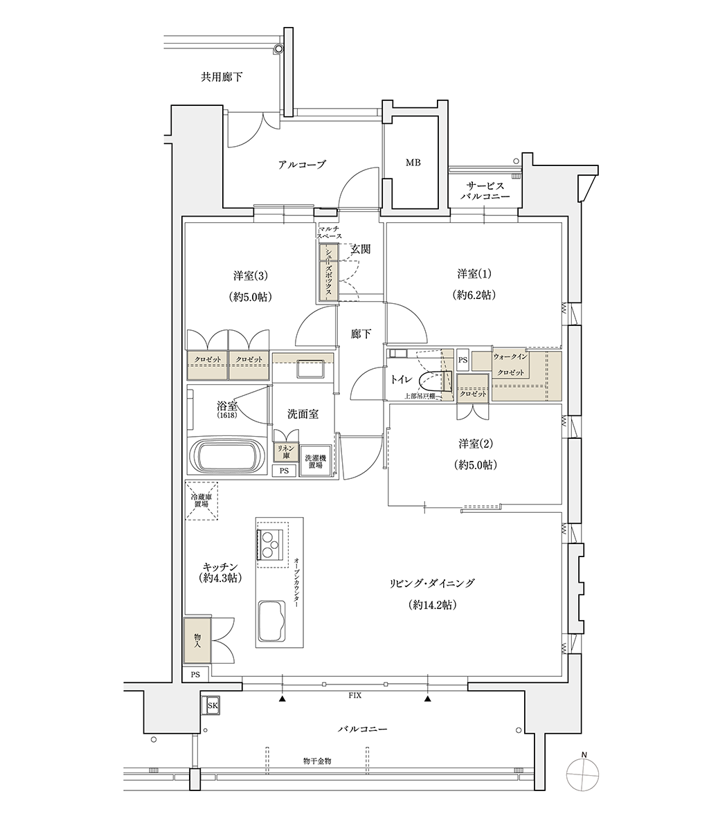
BASIC
2LDK
+S+WIC
(2〜11階)
3LDK
+WIC
(12〜15階)
住居専有面積
74 .65㎡
バルコニー面積/12.37㎡ サービスバルコニー面積/1.42㎡
VALUE POINT
■各居室に開口部を設けた3面採光の明るい角住戸プラン
■洋室(1)にはウォークインクロゼットを採用
■約2.6mのアイランドキッチン、ユニットバスは1618サイズ

WIC:ウォークインクローゼット S:サービスルーム
※掲載の間取図・面積等は設計図を元に描いたもので、 今後変更になる場合がございます。 梁型・下がり天井、一部の設備機器は表現しておりません。予めご了承ください。
※避難ハッチは奇数階・偶数階で位置が異なるため表現しておりません。
※掲載の間取図・面積等は設計図を元に描いたもので、 今後変更になる場合がございます。 梁型・下がり天井、一部の設備機器は表現しておりません。予めご了承ください。
※避難ハッチは奇数階・偶数階で位置が異なるため表現しておりません。